Attico/Mansarda a Bocenago
- Codice
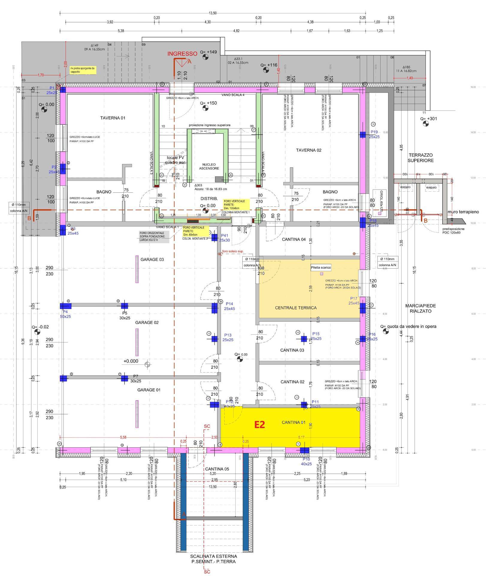
- 998A-IB45-E2
- Mq
- 80
- Locali
- 3
- Camere
- -
- Bagni
- -
€ 450.000,00
Bocenago
Via Roma
Ti interessa quest'annuncio?
Hai bisogno di richiedere maggiori informazioni su questa casa o vuoi fissare un appuntamento per visionarla da vicino?
Classe energetica: A2 - A Bocenago è in corso la costruzione della nuova residenza DOLOMIA.
Nel cuore della Val Rendena con vista sul campo del Golf Club Rendena a pochi km dagli impianti di risalita, dal parco Pineta di Pinzolo, nelle immediate vicinanze degli impianti sportivi e delle piste ciclabili.
Il complesso immobiliare è situato in una zona soleggiata con vista panoramica sulla valle.
Unarchitettura moderna che si integra con i colori e i materiali della montagna.
Linee pulite, ampie vetrate per garantire luminosità e vista panoramica.
Questo complesso è composto da sei unità immobiliari abitative più due taverne.
La consegna è prevista per inizio maggio 2026, ogni unità abitativa rientra nella Classe energetica A, le unità abitative saranno realizzate in base ad un capitolato di ottime finiture, il taglio progettuale al momento non è vincolante c'è la possibilità di definire la distribuzione interna come si desidera.
La soluzione E2, qui proposta, è un attico con vista panoramica sulla valle, così composto: ingresso nel living openspace con zona pranzo e angolo cottura, zona relax con accesso all'ampia terrazza esposta a sud, due stanze da letto, entrambe con accesso al balcone esposto ad est, un bagno con velux e doccia.
Al piano seminterrato ha di pertinenza una ampia cantina e due posti auto all'esterno.
L'impianto di riscaldamento è a pavimento, con centrale termica composta da pompa di calore, è previsto inoltre un impianto domotico per la gestione dell'impianto di riscaldamento, delle luci e oscuranti.
Annuncio inserito il 10 novembre 2025
Caratteristiche
- Metri Quadri
- 80
- Locali
- 3
- Bagni
- 1
- Classe energetica
- N/D Certificazione Energetica in attesa di valutazione/classificazone
- IPE (KWH/MQ anno)
- -
- Spese condominio / Anno
- € 70,00
- Anno di costruzione
- 2026
Gallery
Mappa
I Plus
- Box / Posto Auto
- No
- Ascensore
- Si
- Balcone
- Si
- Riscaldamento Autonomo
- No
- Terrazzo
- Si
- Caminetto
- No
- Giardino
- Si
- Ripostiglio
- No
- Cantina
- No
- Aria Condizionata
- No
- Arredamento
- No
- Portineria/Custode
- No


















