Attico/Mansarda a Trento
- Codice
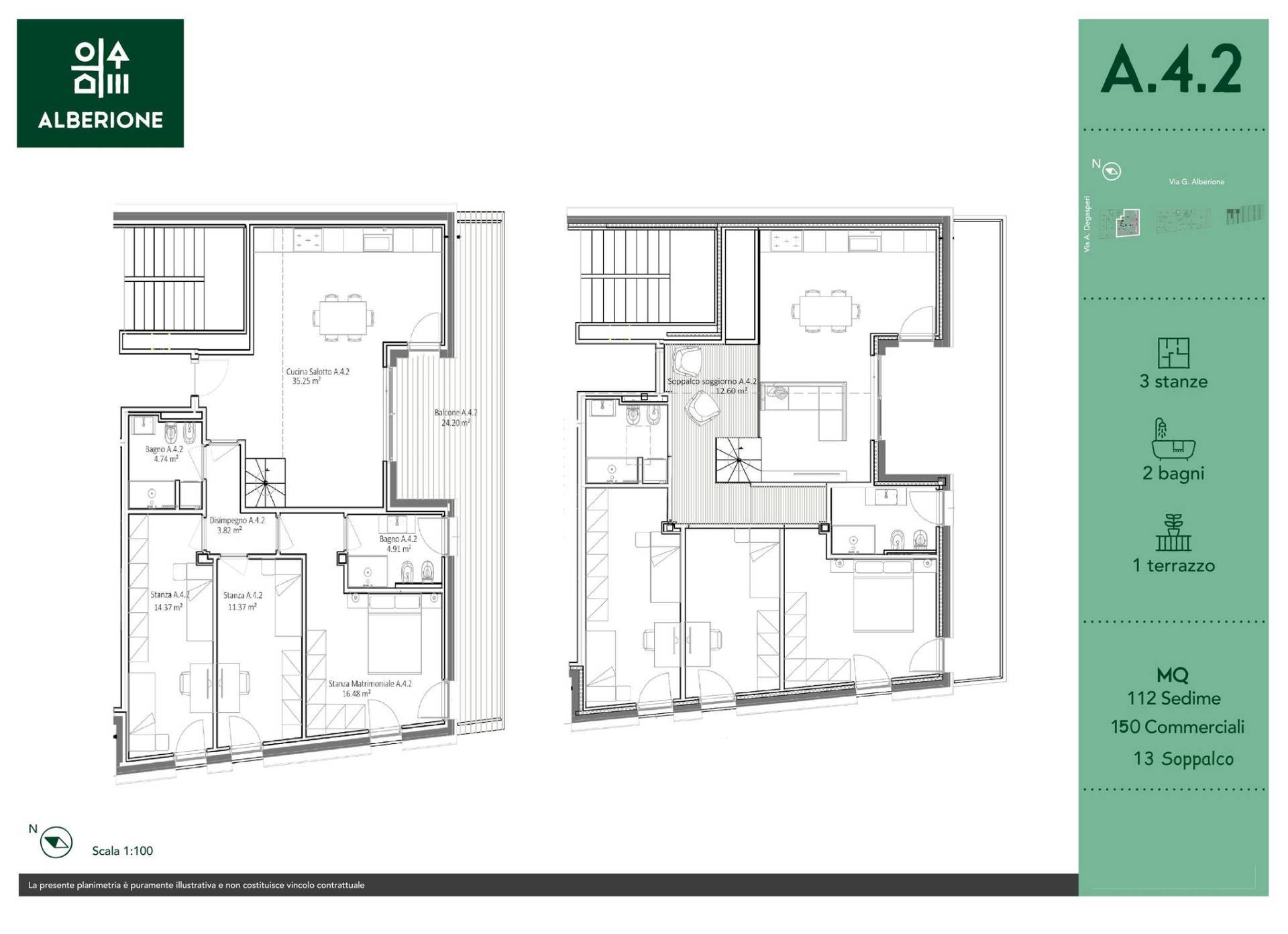
- A42 Living Alberione
- Mq
- 150
- Locali
- 5
- Camere
- -
- Bagni
- -
€ 670.000,00
Trento
via alberione
Ti interessa quest'annuncio?
Hai bisogno di richiedere maggiori informazioni su questa casa o vuoi fissare un appuntamento per visionarla da vicino?
Classe energetica: A4 - Attico di nuova costruzione in vendita Trento, Via Alberione / Via De Gasperi
Ultima unità disponibile
Proponiamo in vendita lultimo attico disponibile all'interno di un prestigioso complesso residenziale di recente realizzazione, situato al quinto e ultimo piano e realizzato in Classe Energetica A+.
Limmobile è composto da tre camere da letto, due bagni finestrati, ampia zona giorno con cucina a vista, terrazzo panoramico, ripostiglio, soppalco multifunzionale, e cantina di pertinenza.
È possibile acquistare fino a tre box auto privati.
La residenza è interamente recintata, dotata di sistema di videosorveglianza, con parcheggi esterni riservati agli ospiti e spazi comuni a disposizione dei residenti, tra cui una palestra attrezzata e una sala riunioni, entrambe prenotabili tramite applicazione dedicata.
Le finiture sono di altissimo livello e comprendono un moderno sistema di domotica integrata per la gestione degli impianti domestici.
L'appartamento viene ceduto arredato, con mobili di design contemporaneo scelti con cura per valorizzare ogni ambiente.
La vendita è soggetta a imposta di registro calcolata sul valore catastale (2% in caso di acquisto come prima casa) e non prevede applicazione dellIVA.
Annuncio inserito il 16 febbraio 2023
Caratteristiche
- Metri Quadri
- 150
- Locali
- 5
- Bagni
- 2
- Classe energetica
- N/D Certificazione Energetica in attesa di valutazione/classificazone
- IPE (KWH/MQ anno)
- -
- Spese condominio / Anno
- € 170,00
- Anno di costruzione
- 2023
Gallery
Mappa
I Plus
- Box / Posto Auto
- No
- Ascensore
- Si
- Balcone
- Si
- Riscaldamento Autonomo
- No
- Terrazzo
- Si
- Caminetto
- No
- Giardino
- Si
- Ripostiglio
- No
- Cantina
- No
- Aria Condizionata
- No
- Arredamento
- No
- Portineria/Custode
- No





























